disturber
Pluspunkte
Projekt

Im imposanten Peter Merian-Haus Ost, direkt neben dem Bahnhof Basel SBB, stehen Ihnen insgesamt über 4’200 m2 Fläche für vielseitige Geschäftsideen zur Verfügung. Das Peter Merian-Haus beeindruckt mit einzigartiger Architektursprache von internationaler Strahlkraft, zentraler Lage und hochfunktionaler Gebäudeinfrastruktur. Hierzu zählen moderne Grundrisse, individuelle Dachterrassen, direkter Zugang zur Tiefgarage und eine eigene Tramhaltestelle.

Nutzen Sie die Chance und entscheiden Sie sich für einen visiblen, repräsentativen und zukunftssicheren Businessstandort im Peter Merian-Haus Ost.

Flächenangebot

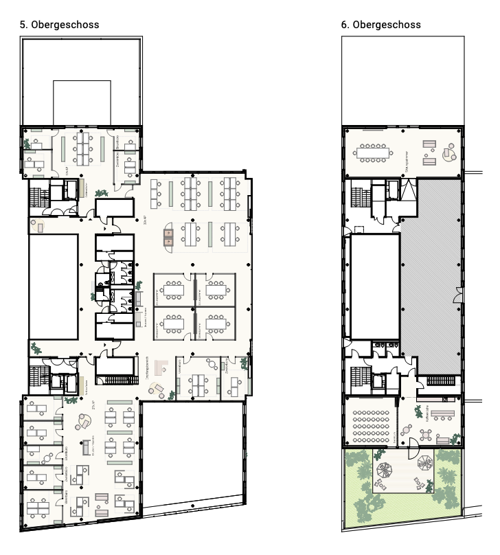
Zur Auswahl stehen je eine Fläche im 1. und 4. Obergeschoss sowie eine etagenübergreifende Einheit im 5./6. Obergeschoss. Die Einheit im 1. Obergeschoss befindet sich an der Peter Merian-Strasse 88, jene Einheiten im 4. bis 6. Obergeschoss erstrecken sich von der Peter Merian-Strasse 88 bis 90 und können entweder als Ganzes oder jeweils zur Hälfte, entsprechend der Hausnummer, angemietet werden.

Die Bürofläche im 1. Obergeschoss ist vollständig ausgebaut mit Lüftung, teilweiser Kühlung, Duschen, Garderoben und zwei Küchen. Die anderen Einheiten werden im erweiterten Grundausbau angeboten. Dabei sind Lüftung und Kühlung über ein Deckensegel sichergestellt; der Doppelboden bietet flexible Gestaltungsmöglichkeiten für die unterschiedlichsten Layouts.

Im Untergeschoss stehen eine Vielzahl an Einstellplätzen und Lagerflächen zur Verfügung.

Status Haus Etage Fläche Aussenfläche Bezug PDF
88/90 EG
88 1. OG 834 m2 ab sofort
90 2. OG
88/90 3. OG
88/90 4. OG 1’499 m2 91 m2 Frühjahr 2025
88 4. OG 886 m2 44 m2 Frühjahr 2025
90 4. OG 613 m2 47 m2 Frühjahr 2025
88/90 5./6. OG
88 5./6. OG 1’102 m2 47 m2 ab sofort
90 5./6. OG
Frei
Reserviert
Vermietet

Layoutstudie
Möblierung 1

4. OG

Downalod Arrow

Layoutstudie
Möblierung 2

4. OG

Downalod Arrow

Layoutstudie
Möblierung 5/6

5./6. OG

Downalod Arrow
Impressionen
Lage und Umgebung

Basel ist ein starker Wirtschaftsstandort mit Zukunft. Die exzellente Infrastruktur, hervorragende Bildungs- und Forschungseinrichtungen, eine hohe Verfügbarkeit von Fachkräften sowie die strategisch ideale Lage im Dreiländereck zieht immer mehr renommierte Unternehmen in die Stadt am Rhein.

Zusätzlich zu der ausgezeichneten Anbindung an den privaten und öffentlichen Verkehr punktet das urbane Umfeld des Peter Merian-Haus Ost mit einer breiten Palette an Restaurants, Take-aways, Einkaufsläden und Hotels. Das nahe Rheinufer und zahlreiche Parkanlagen laden zu entspannten Lunchpausen, Spaziergängen oder sportlichen Aktivitäten ein.

Kontakt
Flächenbedarf:

    Geben Sie diesen Code ein: captcha

    Ihre Kontaktperson
    Andreas Jordi
    +41 44 215 75 40
    letting@jill.com
    Ihre Kontaktperson
    Cedric Ullmann
    +41 44 215 75 61
    letting@jill.com